NA PREDAJ 4 PARCELY, obec JAKUBOVANY, okr. SABINOV.
V obci JAKUBOVANY okr. Sabinov na predaj 4 parcely o rozlohe 1000 m2, ktoré sú vhodné ako investičná príležitosť, alebo ako stavebný pozemok. Obec je vzdialená 18 km od Prešova cca 20 minút autom. Obec je bez osád. Nová štvrť v obci. - Pri kúpe každej parcely je automatický prirátaný aj podiel zo súkromnej príjazdovej cesty - Elektrina vedie pri pozemku číslo 2, ostatné parcely sa môžu pripojiť po žiadosti na VSE - Obec má pripravenú projektovú dokumentáciu na realizáciu novej vetvy - voda/kanál, ktorá bude realizovaná pod príjazdovou komunikáciou - Susedné domy na ulici si aktuálne riešili vodu vlastnou studňou a odpad septikom, alebo čističkou na svojom pozemku - Pozemky sú v osobnom vlastníctve PARCELA 1: súkromná príjazdová cesta, š: 6m, d: 139m, 880 m2 PARCELA 2: 1022 m2, 34 x 31 x 30 x 32, 55.000 EUR PARCELA 3: 1025 m2, 34 x 32 x 33 x 29, 48.000 EUR PARCELA 4: 1022 m2, 37 x 29 x 30 x 20, 48.000 EUR, REZERVOVANÁ PARCELA 5: 1005 m2, 41 x 20 x 35 x 23, 48.000 EUR PARCELA 6: 1008 m2, 36 x 29 x 36 x 27, 48.000 EUR OBEC JAKUBOVANY: - V obci nie sú osady - Pekná a pokojná lokalita - Materská škôlka, ZDŠ prvý stupeň ( 1 – 4 ) - SAD doprava NÁZOR MAKLÉRA: Pozemky sú v novej štvrti v obci Jakubovany, je to tichá oblasť s peknými výhľadmi na okolie a rozloha pozemkov je ideálna na výstavbu rodinných domov. Ak máte záujem o obhliadku, prípadne potrebujete viac informácii, kontaktujte nás na: kmecova@benard.sk, tel.č. 0948 140 849, alebo v realitnom centre na Slovenskej 8 v Prešove. ZADARMO K TEJTO NEHNUTEĽNOSTI DOSTANETE: Ø preverenie právneho stavu a tiarch danej nehnuteľnosti Ø vysvetlenie problémov záložných tiarch, vecných bremien a pod Ø právny servis zabezpečený právnikom s dlhoročnými skúsenosťami Ø kópiu LV prípadne katastrálnej mapy s kolkom na právne účely Ø poplatky za overenie podpisov na zmluvách u notára Ø správny poplatok za vklad vlastníckeho práva do katastra vo výške 100,-€ Ø realitné, daňové a právne poradenstvo Ø zabezpečenie znalca na vypracovanie znaleckého posudku Ø vypracovanie ponúk na zabezpečenie hypotéky u nášho odborníka, ktorý spolupracuje so všetkými bankami
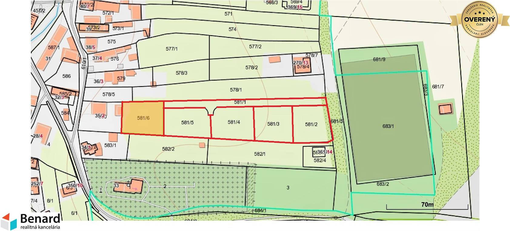
V obci JAKUBOVANY okr. Sabinov na predaj 4 parcely o rozlohe 1000 m2, ktoré sú vhodné ako investičná príležitosť, alebo ako stavebný pozemok.
Obec je vzdialená 18 km od Prešova cca 20 minút autom.
Obec je bez osád.
Nová štvrť v obci.
- Pri kúpe každej parcely je automatický prirátaný aj podiel zo súkromnej príjazdovej cesty
- Elektrina vedie pri pozemku číslo 2, ostatné parcely sa môžu pripojiť po žiadosti na VSE
- Obec má pripravenú projektovú dokumentáciu na realizáciu novej vetvy - voda/kanál, ktorá bude realizovaná pod príjazdovou komunikáciou
- Susedné domy na ulici si aktuálne riešili vodu vlastnou studňou a odpad septikom, alebo čističkou na svojom pozemku
- Pozemky sú v osobnom vlastníctve
PARCELA 1: súkromná príjazdová cesta, š: 6m, d: 139m, 880 m2
PARCELA 2: 1022 m2, 34 x 31 x 30 x 32, 55.000 EUR
PARCELA 3: 1025 m2, 34 x 32 x 33 x 29, 48.000 EUR
PARCELA 4: 1022 m2, 37 x 29 x 30 x 20, 48.000 EUR, REZERVOVANÁ
PARCELA 5: 1005 m2, 41 x 20 x 35 x 23, 48.000 EUR
PARCELA 6: 1008 m2, 36 x 29 x 36 x 27, 48.000 EUR
OBEC JAKUBOVANY:
- V obci nie sú osady
- Pekná a pokojná lokalita
- Materská škôlka, ZDŠ prvý stupeň ( 1 – 4 )
- SAD doprava
NÁZOR MAKLÉRA:
Pozemky sú v novej štvrti v obci Jakubovany, je to tichá oblasť s peknými výhľadmi na okolie a rozloha pozemkov je ideálna na výstavbu rodinných domov.
Ak máte záujem o obhliadku, prípadne potrebujete viac informácii, kontaktujte nás na: kmecova@benard.sk, tel.č. 0948 140 849, alebo v realitnom centre na Slovenskej 8 v Prešove.
ZADARMO K TEJTO NEHNUTEĽNOSTI DOSTANETE:
Ø preverenie právneho stavu a tiarch danej nehnuteľnosti
Ø vysvetlenie problémov záložných tiarch, vecných bremien a pod
Ø právny servis zabezpečený právnikom s dlhoročnými skúsenosťami
Ø kópiu LV prípadne katastrálnej mapy s kolkom na právne účely
Ø poplatky za overenie podpisov na zmluvách u notára
Ø správny poplatok za vklad vlastníckeho práva do katastra vo výške 100,-€
Ø realitné, daňové a právne poradenstvo
Ø zabezpečenie znalca na vypracovanie znaleckého posudku
Ø vypracovanie ponúk na zabezpečenie hypotéky u nášho odborníka, ktorý spolupracuje so všetkými bankami




