MODERNÝ 5 IZBOVÝ RODINNÝ DOM, KRÁSNY VÝHĽAD, VEĽKÁ LOMNICA;
Vážení záujemci! Hľadáte bývanie blízko hôr s celoročným využitím a výbornou dostupnosťou? Vo veľmi peknej lokalite Veľkej Lomnice s krásnym výhľadom na Vysoké Tatry (Lomnický štít), Vám ponúkame na kúpu nový, priestranný, 5 izbový Rodinný dom s jednoduchým charakterom, prvkami modernej architektúry, ktorý svojim výzorom zapadá do celkovej atmosféry daného okolia. Majitelia si dali veľmi záležať na detailoch, kvalite prevedenia a funkčnosti jednotlivých komponentov. Súčasťou domu je aj pozemok o rozlohe 635m2. Veľká Lomnica je obec v okrese Kežmarok, ležiaca pod Tatrami len pár minút od diaľnice v Poprade, tvorí významnú križovatku medzi Popradom, Kežmarkom a Vysokými Tatrami. ZÁKLADNÉ INFORMÁCIE O DOME: - kolaudácia v roku 2022; - dom je tvorený z 3 podlaží, kde v suteréne sa nachádza chodba, wellnes s WC a sprchou, technická miestnosť, letná kuchynka o celkovej úžitkovej ploche 65m2; - z letnej kuchyne je východ na terasu/záhradu, ktorý je zároveň ďalším vchodom do domu, v podlaží suterénu pod terasou je vytvorený sklad so samostatným vchodom; - na prízemí (2.NP) sa nachádza vstup, zádverie, šatník /lyžiareň/, chodba, WC, spálňa s vlastnou kúpeľňou a WC, obývačka s kuchyňou a komorou, chodba o celkovej ploche 92m2. Z obývačky a spálne je vstup na terasu; - z obývačky je zároveň vstup na balkón, ktorý je po celej šírke domu; - poschodie (3.NP) je tvorené chodbou, izbou, kúpeľňou s WC, spáľňou so šatníkom, detskou izbou o celkovej výmere 83m2; - zastavaná plocha domu je 115m2 s celkovou úžitkovou plochou cca 240 m2; - veľmi dobre rozloženie miestností s dostatkom svetla, slnka od rána až do jeho západu; VYKUROVANIE, REKUPERÁCIA, FOTOVOLTAIKA: - dom je napojený na všetky dostupné siete – plyn, elektrika, obecný vodovod a kanalizácia; - kúrenie zabezpečuje plynový kondenzačný kotol zn. BOSCH – možnosť regulácie cez mobil; - primárne vykurovanie zabezpečené podlahovým kúrením; - sekundárne zabezpečenie tepla pomocou výhrevného krbu – umiestnený v obývačke; - zásobník na teplú vodu; - v dome nainštalovaná dvojitá rekuperácia – sústavná výmena vzduchu, bez zápachov, stropné vývody v jednotlivých miestnostiach; - na streche umiestnené fotovoltaické články – napojenie všetkých svetiel a chladničky; - komín systémový montovaný dvojitý pre plynové a krbové použitie; - optický internet a TV samozrejmosťou, kamerový a zabezpečovací systém; - náklady na prevádzku cca 100€ pre 3 člennú rodinu; STAVEBNÉ PREVEDENIE, MATERIÁLY: - obvodové a nosné murivo je z pórobetónových tvárnic YTONG 30 cm, ostatné murivo z 10,20 alebo 25 cm; - obvodové steny zateplené minerálna vlna 16cm; - fasáda domu z termo dreva - fínska borovica, bez povrchovej úpravy; - stropná konštrukcia zo železobetónových prekladov; - strešná krytina BRAMAC – tepelná izolácia strecha zabezpečená minerálnou vatou; - hydroizolácia proti zemnej vlhkosti; - okná plastové 8-komorové s izolačnými trojsklami, drevohliník zn. Kunaj, taktiež exteriérové a interiérové dvere; - použité kvalitné masívne drevené materiály ako dvere, obložky, nábytok, postele; OKOLIE DOMU: - upravený terén, záhrada, výsadba okrasnej zelene, skalka; - vstup na pozemok z domu zo suterénu; - pozemok oplotený; - parkovanie zebezpečené pre 4 auta; Dojmy makléra: Veľmi pekný, príjemný Rodinný dom, hlavne kvalitne prevedený. S vkusnou kombináciou dreva dostatočným svetlom dom pôsobí veľmi teplo. Má všetko čo rodina potrebuje na bývanie, aj niečo navyše spojené s pekným okolím. Možnosť výletov, turistiky a pod. Dom je vhodný na trvalé aj občasné bývanie, popr. ubytovanie pre návštevníkov regiónu – komerčné účely. Možnosť výletov do AquaCity, Slovenského raja, Bachledovej doliny, Thermal park Vrbov a pod. V tejto obci sa nachádza aj sa golfový areál Black Stork, ktorý ponúka profesionálne 27-jamkové ihrisko.
Vážení záujemci!
Hľadáte bývanie blízko hôr s celoročným využitím a výbornou dostupnosťou? Vo veľmi peknej lokalite Veľkej Lomnice s krásnym výhľadom na Vysoké Tatry (Lomnický štít), Vám ponúkame na kúpu nový, priestranný, 5 izbový Rodinný dom s jednoduchým charakterom, prvkami modernej architektúry, ktorý svojim výzorom zapadá do celkovej atmosféry daného okolia. Majitelia si dali veľmi záležať na detailoch, kvalite prevedenia a funkčnosti jednotlivých komponentov. Súčasťou domu je aj pozemok o rozlohe 635m2.
Veľká Lomnica je obec v okrese Kežmarok, ležiaca pod Tatrami len pár minút od diaľnice v Poprade, tvorí významnú križovatku medzi Popradom, Kežmarkom a Vysokými Tatrami.
ZÁKLADNÉ INFORMÁCIE O DOME:
- kolaudácia v roku 2022;
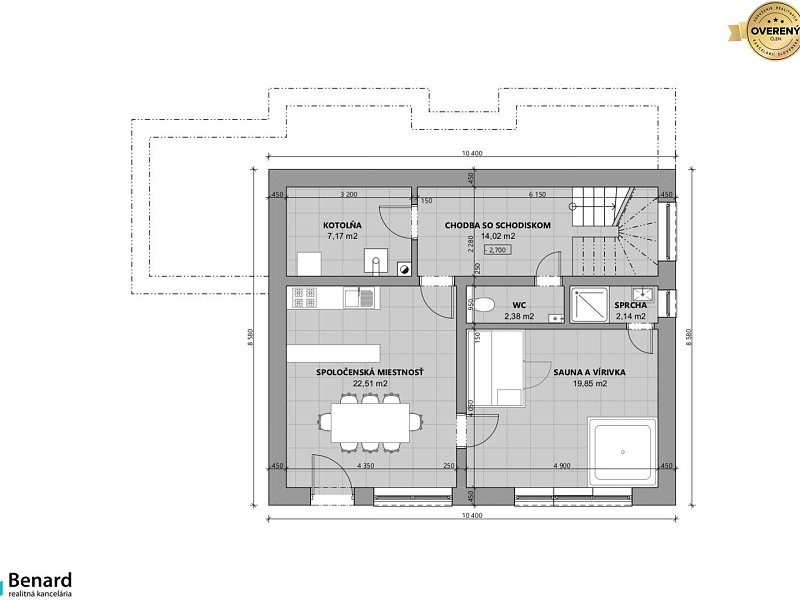
- dom je tvorený z 3 podlaží, kde v suteréne sa nachádza chodba, wellnes s WC a sprchou, technická miestnosť, letná kuchynka o celkovej úžitkovej ploche 65m2;
- z letnej kuchyne je východ na terasu/záhradu, ktorý je zároveň ďalším vchodom do domu, v podlaží suterénu pod terasou je vytvorený sklad so samostatným vchodom;
- na prízemí (2.NP) sa nachádza vstup, zádverie, šatník /lyžiareň/, chodba, WC, spálňa s vlastnou kúpeľňou a WC, obývačka s kuchyňou a komorou, chodba o celkovej
ploche 92m2. Z obývačky a spálne je vstup na terasu;
- z obývačky je zároveň vstup na balkón, ktorý je po celej šírke domu;
- poschodie (3.NP) je tvorené chodbou, izbou, kúpeľňou s WC, spáľňou so šatníkom, detskou izbou o celkovej výmere 83m2;
- zastavaná plocha domu je 115m2 s celkovou úžitkovou plochou cca 240 m2;
- veľmi dobre rozloženie miestností s dostatkom svetla, slnka od rána až do jeho západu;
VYKUROVANIE, REKUPERÁCIA, FOTOVOLTAIKA:
- dom je napojený na všetky dostupné siete – plyn, elektrika, obecný vodovod a kanalizácia;
- kúrenie zabezpečuje plynový kondenzačný kotol zn. BOSCH – možnosť regulácie cez mobil;
- primárne vykurovanie zabezpečené podlahovým kúrením;
- sekundárne zabezpečenie tepla pomocou výhrevného krbu – umiestnený v obývačke;
- zásobník na teplú vodu;
- v dome nainštalovaná dvojitá rekuperácia – sústavná výmena vzduchu, bez zápachov, stropné vývody v jednotlivých miestnostiach;
- na streche umiestnené fotovoltaické články – napojenie všetkých svetiel a chladničky;
- komín systémový montovaný dvojitý pre plynové a krbové použitie;
- optický internet a TV samozrejmosťou, kamerový a zabezpečovací systém;
- náklady na prevádzku cca 100€ pre 3 člennú rodinu;
STAVEBNÉ PREVEDENIE, MATERIÁLY:
- obvodové a nosné murivo je z pórobetónových tvárnic YTONG 30 cm, ostatné murivo z 10,20 alebo 25 cm;
- obvodové steny zateplené minerálna vlna 16cm;
- fasáda domu z termo dreva - fínska borovica, bez povrchovej úpravy;
- stropná konštrukcia zo železobetónových prekladov;
- strešná krytina BRAMAC – tepelná izolácia strecha zabezpečená minerálnou vatou;
- hydroizolácia proti zemnej vlhkosti;
- okná plastové 8-komorové s izolačnými trojsklami, drevohliník zn. Kunaj, taktiež exteriérové a interiérové dvere;
- použité kvalitné masívne drevené materiály ako dvere, obložky, nábytok, postele;
OKOLIE DOMU:
- upravený terén, záhrada, výsadba okrasnej zelene, skalka;
- vstup na pozemok z domu zo suterénu;
- pozemok oplotený;
- parkovanie zebezpečené pre 4 auta;
Dojmy makléra:
Veľmi pekný, príjemný Rodinný dom, hlavne kvalitne prevedený. S vkusnou kombináciou dreva dostatočným svetlom dom pôsobí veľmi teplo. Má všetko čo rodina potrebuje na bývanie, aj niečo navyše spojené s pekným okolím. Možnosť výletov, turistiky a pod. Dom je vhodný na trvalé aj občasné bývanie, popr. ubytovanie pre návštevníkov regiónu – komerčné účely.
Možnosť výletov do AquaCity, Slovenského raja, Bachledovej doliny, Thermal park Vrbov a pod. V tejto obci sa nachádza aj sa golfový areál Black Stork, ktorý ponúka profesionálne 27-jamkové ihrisko.



















