PRENÁJOM SKLAD./VÝROB.PRIESTOR, SABINOV, UL. POD ŠVABĽOVKOU
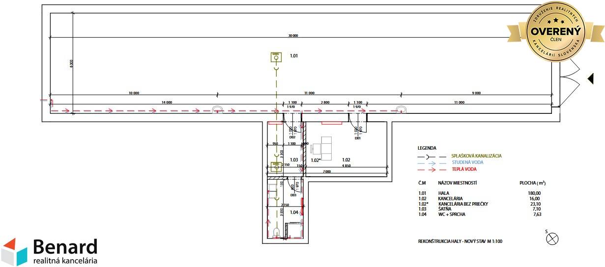
Ponúkame na prenájom zrekonštruovaný a zateplený objekt vhodný na skladové alebo ľahké výrobné účely. Objekt prešiel kompletnou rekonštrukciou a ponúka čisté, reprezentatívne a energeticky úsporné prostredie. Podlaha v hale je leštený betón, Vstup do priestoru je zabezpečený elektrickou vstupnou bránou, vyhrievanie priestoru je zabezpečované kúrením ako aj klimatizáciou. Cena: 3 € / m² bez DPH + energie Objekt je napojený na elektriku(230/400), vodu a kanalizáciu. Budova je strážená 24/7 kamerovým systémom a súčasťou areálu je aj súkromné parkovisko s bezproblémovým prístupom. Plocha: 180 m² hala (30 m x 6 m) 16 m² kancelária 7,1 m2 šatňa 7,6 m2 toaleta
Ponúkame na prenájom zrekonštruovaný a zateplený objekt vhodný na skladové alebo ľahké výrobné účely. Objekt prešiel kompletnou rekonštrukciou a ponúka čisté, reprezentatívne a energeticky úsporné prostredie. Podlaha v hale je leštený betón, Vstup do priestoru je zabezpečený elektrickou vstupnou bránou, vyhrievanie priestoru je zabezpečované kúrením ako aj klimatizáciou.
Cena: 3 € / m² bez DPH + energie
Objekt je napojený na elektriku(230/400), vodu a kanalizáciu.
Budova je strážená 24/7 kamerovým systémom a súčasťou areálu je aj súkromné parkovisko s bezproblémovým prístupom.
Plocha: 180 m² hala (30 m x 6 m)
16 m² kancelária
7,1 m2 šatňa
7,6 m2 toaleta




